0475-23-37329:00~17:00 受付 / 月・火曜定休
会社紹介サイトはこちら
アパート

INVEXのアパート

INVEXのアパートは、高品質なデザイン、機能的な設計、そしてなによりも「住みやすい」を重視した、入居される方々の満足感を最大限に高めるアパートの新しい在り方を実現しています。

オーナー様にも入居者様にもどちらにも寄り添う商品展開とサポート体制をご提供いたます。

階段の先にお気に入りの空間を

INVEX
ロフト付き2階建てアパート

INVEXのロフト付き2階建てアパート
INVEXのロフト付き2階建てアパート室内イメージ
建物の特徴
  • 高い天井を活かしたロフトで空間活用を最大化
  • 一味違った一人暮らしを楽しめる♫
  • ロフトにプライベート空間を作れば、いつでも人を招待できる
  • ホールや廊下にスペースを抑え、空間を最大限まで居室に活用
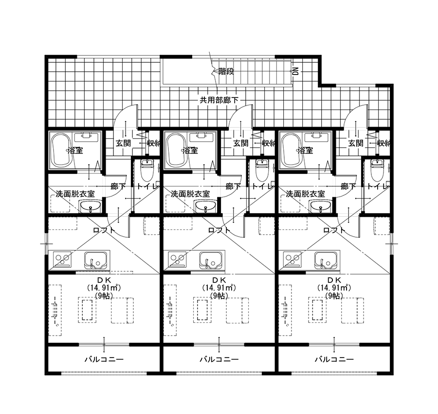
INVEXのロフト付き2階建てアパート間取りINVEXのロフト付き2階建てアパート間取り
INVEXのロフト付き2階建てアパートの収支シミュレーションを専門のアドバイザーが行います。お気軽にお問い合わせくださいINVEXのロフト付き2階建てアパートの収支シミュレーションを専門のアドバイザーが行います。お気軽にお問い合わせください

磨き上げられたデザイン

INVEX
3階建てアパート

INVEXの3階建てアパート
INVEXの3階建てアパート室内イメージ
建物の特徴
  • 一味違った一人暮らしを楽しめる♫
  • プライベート空間とLDKが分かれているから、いつでもお客さんを招待が可能
  • ホールや廊下にスペースを抑え、空間を最大限まで居室に活用
  • ウォークインクローゼットで広々とした収納
  • インナーバルコニーで、小雨程度であれば降りこまない
  • 1人~2人での暮らしにオススメのアパート
INVEXの3階建てアパート間取りINVEXの3階建てアパート間取りINVEXの3階建てアパート間取り
INVEXのロフト付き2階建てアパートの収支シミュレーションを専門のアドバイザーが行います。お気軽にお問い合わせくださいINVEXのロフト付き2階建てアパートの収支シミュレーションを専門のアドバイザーが行います。お気軽にお問い合わせください
レポートダウンロード

不動産投資を検討中のオーナー・投資家様向けのスペシャルレポートをダウンロードいただけます

0475-23-3732 レポートダウンロード メールでのお問合せ